Objektdaten
Grundstück
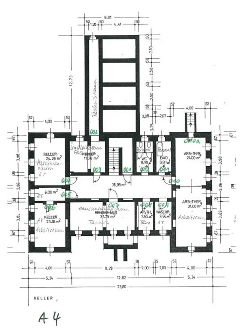
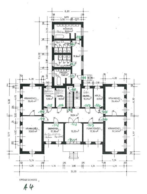
Dr.-Max-Krell-Park 41 Haus A4
02708 Großschweidnitz
Kaufpreis (EUR):
Der Verkauf erfolgt freibleibend zum höchsten Gebot.
Mindestgebot 120000 EUR
Gebotsende:
30.06.2026
Lage / Umfeld:
Der idyllische Ort Großschweidnitz befindet sich im Herzen des ostsächsischen Oberlausitzer Berglands, zwischen den Städten Bautzen, Görlitz und Zittau. Mit ca. 1.200 Einwohnern und einer Fläche von 7,47 km², bildet Großschweidnitz einen Teil der Urlaubs- u. Freizeitregion Oberlausitz. Der Standort Großschweidnitz ist überregional bekannt durch das Sächsische Fachkrankenhauses für Psychiatrie sowie durch die idyllische Lage. Der Ort ist durch die Bundesautobahn 4 sowie die fernverkehrsstraßenähnliche B178 bequem erreichbar. Die Kombination aus Lage und Anbindung bilden gute Standortvoraussetzungen und Eintrittsmöglichkeiten in die Region Oberlausitz. Die Freizeit- und Urlaubsregion Oberlausitz bietet ein breites Spektrum an Highlights. Angefangen von sagenhaften Weitsichten über das Oberlausitzer Bergland hinaus bis hin zu paradiesische Wander- u. Radrouten.
Objektbeschreibung:
Die zu veräußernde Liegenschaft besteht aus einer unvermessenen Teilfläche von ca. 3.300 m² welche bebaut ist mit einem charmanten ehem. Klinikgebäude inklusive Anbau und einem Unterstand für Fährräder. Der 1900 erbaute zweigeschossige und unterkellerte Klinkerbau verfügt über eine Nutzfläche von ca. 800 m² und wurde mit roten Backsteinornamenten abgesetzt. Um 1970 erfolgte ein Anbau an das Hauptgebäude. Es besteht Denkmalschutz als Einzeldenkmal sowie als Teil der denkmalgeschützten Sachgesamtheit ehem. Landesanstalt Großschweidnitz. Eine künftige Nutzung ist sowohl zu Wohnzwecken als auch gewerblich oder in Mischnutzung denkbar. Die Medien Trinkwasser, Abwasser, Gas und Strom liegen an und werden durch die Klinik zur Verfügung gestellt. Das Objekt wird mit Fernwärme beheizt. Die Zuwegung erfolgt aktuell über die Pforte der Klinik. Die Schaffung einer eigenen Zufahrt ist möglich. Eine Onlinebesichtigung finden Sie unter folgendem Link: https://my.matterport.com/show/?m=TaFLTJ6Qk66
Flurstücksnummer:
Teil von 71/72
Gemarkung(en):
Großschweidnitz
Grundstücksgröße (in m²):
3.300
vorhandene Bebauung:
zweigeschossiges ehemaliges Klinikgebäude,
unterkellert,
Dachgeschoss teilweise ausgebaut,
freistehend
zweigeschossiger Anbau mit nicht ausgebautem Dachgeschoss
zulässige Bebauung:
baureifes Land
Wasser:
ja
Abwasser:
ja
Elektrizität:
ja
Gas:
ja
Kabelanschluss:
ja
Telefon:
ja
Baujahr der/des Gebäude(s):
1900
denkmalgeschützt:
ja
Nutzfläche der/ des Gebäude(s) (in m²):
800
Heizung:
keine Angaben
Altlasten:
keine bekannt
Eigentümer:
Freistaat Sachsen
Nutzungsverhältnisse:
keine
Einnahmen p.a.:
keine
Lasten / Beschränkungen:
-Wegerecht zum Gehen und Fahren f. Eigentümer d. Flst. 71/49, 71/50 u. 71/51 (wird im Zuge der Vermessung gelöscht)
-auflösend bedingtes Wegerecht zum gehen und Fahren f. Eigentümer d. Flst. 71/49, 71/50, 71/51 (wird im Zuge der Vermessung gelöscht)
-Geh- und Fahrtrecht f. jeweiligen Eigentümer des Flst. 71/73
-Abwasserleitungsrecht f. eine Privatperson
-Trinkwasserleitungsrecht für SOWAG mbH
-Leitungsrecht für Glasfaser wurde erklärt
Grundpfandrechte:
keine












